Drubner Commercial



   Back to Properties

    Email This Property
    More Info
Drubner Commercial
530 Middlebury Rd. 211B
Middlebury, CT 06762
Office 203.753.4116
Fax 203.578.3003


LISTING DESCRIPTION
KEYS
X Sale
Lease
Indust.
Retail
Office
Apartment
X Land

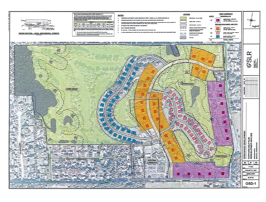
NAME OF BUILDING OR SITE 133 acres with possible 140 Units of housing 

TOWN   Bristol      ST. & No. Marsh Road and Hill Street          ZIP 06010 

DIRECTIONS  

DESCRIPTION   Various site plans developed for informational purposes only. 133 acres available for residential development 

WILL DIVIDE     PRESENT USES golf course    POTENTIAL USES see attached 


BUILDING

FLOORS  
  SF Ceiling
1st fl.    
2nd fl.    
3rd fl.    
Other    
Office SF  
Total SF avail.  
Total SF bldg.  
Type Const.  
Column spacing  
Yr. built  
No. O/H doors  
Truck docks  
Parking  
Expansion  


ASSESSMENT:

Land:  
Improvements:  
Total:  
Condo Fee:  

Mill Rate:  
Taxes:  


Agent: DAVID R. THEROUX 
 
MECHANICAL EQUIPMENT

Heat Type  
Elev.  
A/C Office  
   plant  
Sprinkler  
Roof Type  
Year  
Other  


UTILITIES

Water: Municipal Well  
Electric: Amp.   Phase  
Gas:
Sewer: Sanitary Septic  


REMARKS:
One site plan shows up to 140 units 
 
 
 
 


 
LAND

Acres 133 
Zoning Residential 


Condition of Site (%)
  Level  
  Slope  
  Wet  
  Dry  


TERMS

Sale $5,000,000 
Lease Price  


Tenant Pays:

   Insurance  
   Heat  
   Water  
   A/C  
   Electric  
   Taxes  


TRANSPORTATION

Highway Visibility  
Highway/Interstate  
   Exit  
   State Rt.  
   RR Siding   


Information shown is purported to be from reliable sources. No representation is made as the acuracy thereof and is submitted subject to errors, ommission, change of price, rental or other conditions, prior sale or withdrawal notice.